A v2com exclusive
OATBOX A Design for the Happiness of Breakfast.
ISSADESIGN
OATBOX, headquarters
Much more than a renovation, the OATBOX office design project is reinventing the site and exploiting the potential of a former garage in poor condition that once belonged to an iconic Montreal restaurant. In order to prove to the firm OATBOX that the local, once metamorphosed, would meet the needs of the company, the owners of the vacant space contacted the agency ISSADESIGN. The goal of the agency was to transform the place into an inviting space.
It was important for the nutritious lunch company to work in a bright, healthy looking, family-friendly space. The tight budget imposed a considerable challenge for the designers considering the state in which the local was.
For this company, everything starts with a good lunch.
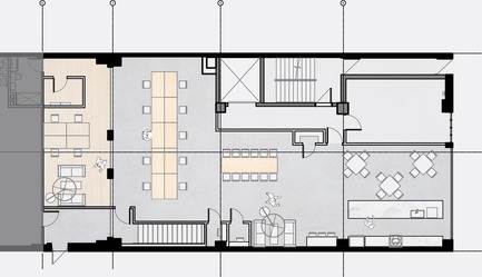
It is for this reason that the kitchen is the heart of the project and is visible from the outside. Near this living area is a dining room with a large wooden gathering table. The living room takes place at his side. Behind these residential looking spaces are the offices of the employees. The balance between the corporate and residential environment results from an ingenious combination of luminosity, materiality and furniture. Ambient lighting was an important factor in the success of design because photography and video are taken daily in OATBOX offices.
For this purpose, the workshop offers a workspace that looks both residential and industrial.
The facade facing the street opens to the outside and lets in the natural light with a large glazed garage door. The conservation of this architectural element is certainly a nod to the old occupation of the place. In addition, it allows occupants to open the space in the summer season and enjoy natural ventilation.
This gesture offers the opportunity to do creative activities with the neighborhood which reinforces the family spirit of the place and openness to the community. OATBOX cares about people’s health by offering balanced meals.
The architectural personality is defined by the simplicity and sophistication of the materials, the wood, the marble, the paneling, the concrete and the red brick of the common wall. However, the existing raw materials are left uncovered leaving all the architectural character of the premises. All these textures coexist in harmony using the neutrality of the white that allows the reflection and increase the natural luminosity, making it by the very fact, omnipresent.
Accents of colors and vegetation are sparingly integrated in various places of the local making it all warmer. The furniture is inviting and reminiscent of home with its sofas, carpets and large cushions.
The visual continuity between the various functions and the controlled scale of the project make the space inviting and favorable to the creation of products adapted to everyday life. Through this project, ISSADESIGN has demonstrated that any space has potential and that it is sufficient to have a sensitive approach to take advantage of its assets.
Project Specifications
Location: Borough of Le Plateau-Mont-Royal, Montreal, QC
Area: 2300Â pi. ca. / 215Â m. ca.
Materials: Concrete, quartz, wood, paneling, brick.
Projet’s Team
Client: Oatbox
Design: ISSADESIGN, design de l’environnement intĂ©grĂ©
General Contractor: Avantage Plus
Photographe: Maxime Brouillet
About ISSADESIGN
ISSADESIGN is an environmental design agency specializing in the fields of institutional, corporative, commercial and residential design. Its areas of expertise include creative consultation, interior planning and design, and architecture.
ISSADESIGN takes to heart their client’s expectations, needs and desires by creating timeless designs that respects the principals of sustainability. The designers believe they can contribute to a greener society, one step at a time. No matter the size or budget of a project, they integrate simple and inexpensive ecological solutions to their concepts. The team develops a close relationship with their clients by being available and flexible to their needs. Their respect for their client’s needs and their collaborator’s ideas contributes to the richness of ISSADESIGN’s projects. The client is at the heart of the process in each projects. The design team submerges into their universe to create and develop the perfect sync between their philosophy and their personality.
At ISSADESIGN, the designers are hungry for challenge, creative solutions and innovative technology. Their constant curiosity pushes the team to exceed the client’s expectations by creating unique spaces where aesthetics and functionality meet.
– 30 –
- ISSADESIGN
- Marie Eve Issa, President
- [email protected]
- +1 514-442-9118*101

Maxime Brouillet
~
140 MB

Maxime Brouillet
~
140 MB

Maxime Brouillet
~
140 MB

Maxime Brouillet
Maxime Brouillet

Maxime Brouillet

Maxime Brouillet

Maxime Brouillet

Maxime Brouillet

Maxime Brouillet

Maxime Brouillet

Maxime Brouillet

ISSADESIGN

ISSADESIGN

ISSADESIGN

ISSADESIGN



