Das Bier
Humà design + architecture
Montréal, Canada, 2016-01-18 –
Das Bier enhanced the premises of a former show bar, by implanting the industrial style German “Bierhall” concept, meeting point between the European cult for great beers and the Rosemont neighborhood lifestyle.
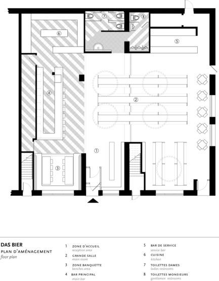
Our first intervention was to open the space, composed of three buildings with three different ground floor levels, to create one single large hall. Then, we custom-designed oversized communal tables, which evolve through the space, going from table height to countertop height tables, linking the different levels, weaving the space. The main bar serves as a stage for the “Steins”, large typical Bavarian beer mugs, which are glorified in their own unique locker on the white back bar wall, where 20 draft lines were passed through the wall for a clean minimalistic effect.
Towering the space, large interpretations of the typical “Bierhall” traditional chandeliers hang above the communal tables. These large circular fixtures made of perforated hot rolled steel, diffuse gently the light through their perforations. We then declined this language into a family of similar elements, such as the exterior overhung façade and the steps transition between the different levels inside the space, all made of crude steel.
During the demolition, the removal of some materials exposed original high quality long hidden elements; Layers of history with which we’ve decided to work, such as the terrazzo floors and the original stone façade of the building. To the existing materials, is grafted the warmth of wood walls upholstering and the sobriety of crude steel elements, enhanced by a contrasted black and white palette to heighten the mood.
Das Bier is primarily a place for beer lovers and there are several subtle and less subtle allusions of it throughout the project. We’ve designed the restroom’s entrance wall with a composition of 7500 white and gold beer caps assembled into a pattern that reflects light and shines through the space. In addition, the ceiling in the lounge area is made of an assemblage of aluminum beer barrels on which we’ve added lighting fixtures, bringing down the ceiling for a more casual effect.
– 30 –
- Humà design + architecture
- Vitasha Ferraro-Dubuc, Réceptionniste
- [email protected]
- 514-274-3883

Adrien Williams
~
140 MB

Adrien Williams
~
140 MB

Adrien Williams
~
140 MB

Adrien Williams
~
140 MB

Adrien Williams
~
140 MB

Adrien Williams
~
140 MB

Adrien Williams
~
140 MB

Adrien Williams
~
140 MB

Adrien Williams
~
140 MB

Adrien Williams
~
140 MB

Adrien Williams
~
140 MB

Adrien Williams
~
140 MB

Adrien Williams
~
140 MB

Adrien Williams
~
140 MB

Humà design + architecture
~
2.7 MB



