Waste treatment facility from Vallès Occidental in Vacarisses (Barcelona)
Batlle and Roig architects
Esplugues de Llobregat, Spain, 2011-11-28 –
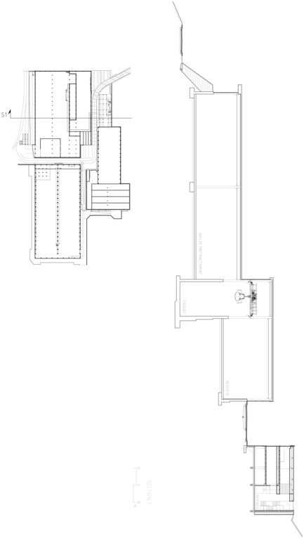
The Waste Treatment Facility (CTRV, in Spanish) is located on a hillside overlooking the Coll Cardús massif in the municipality of Vacarisses, in the district of the Vallès Occidental. This site is currently taken up by a controlled waste landfill site nearing its capacity limit. This fact has caused its managing body to consider regulating the closure of the facility and to study possible future uses for the area. The choice of the location of the CTRV has also taken into account different criteria of logistical and economic suitability, as well as the minimization of the environmental impact resulting from the installation and operation of waste management-related activities.
The activity of the landfill site has led to unfriendly topographical alterations and modifications in the natural environment. For this reason, we decided to establish the facilities in those areas where the activity of the landfill had already damaged the natural environment. Despite the size of the plant facilities, it is intended to achieve the highest landscape integration with the environment. In order to achieve this goal, we pursue a high topographical adaptation, where the impact from roofs and facades is minimized by the subsequent landscape restoration.
The building uses the water and energy generated by the Plant itself. The water comes mostly from the collection of rainwater and the energy needed is obtained from the biogas generated by the waste materials found at the neighboring Coll Cardús landfill site.
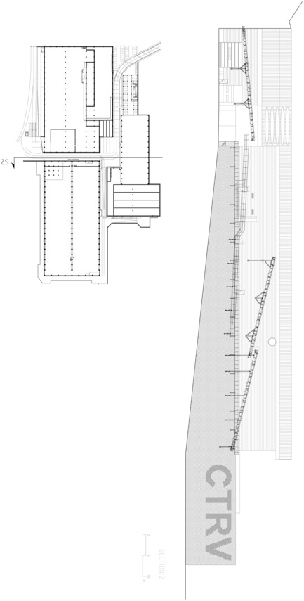
The project involves the construction of two large treatment areas under a large roof. These areas, separated by a driveway, are different in height and they sit at different levels. That is the reason why the roof changes its geometry according to the programs and dimensions of each precinct.
The roof will cover a variety of requirements: forced air vents, skylights, etc., and they will blend together by the use of a graphic structure that may be transformed into a landscape roof.
The different circles contain earth, gravel, and native groundcovers and shrubs. Over time, they will balance the impact of the facility without resorting to camouflage or mimicry.
Location: Vacarisses (Barcelona)
Client: Consorci per a la Gestió dels Residus del Vallès Occidental
Architects / Designers: Enric Batlle Durany (architect) and Joan Roig Duran (architect) Batlle & Roig Architects
Design team: Enric Batlle Durany and Joan Roig i Duran
Authors: Enric Batlle, Joan Roig, architects Collaborators: Xavier Ramoneda, architect, Mario Suñer, architect, IDEMA, engineering
Project date: 2008
Work date: 2010
Area: 45.000m2
Developer: Consorci per a la Gestió dels Residus del Vallès Occidental
Builder: UTE CTR-VALLEYS (HERA, FCC and Urbaser)
Budget: 74.000.000€
Engineers: IDEMA, engineering
Landscape architects: Enric Batlle Durany and Joan Roig i Duran
Contractor: UTECTRV (FFC + HERA + URBASER)
Lighting design: Lourdes Romeo, architect
Surface: 45.000m2
Project end date: Project date: 2008 Work date: 2010
Photographer: Francisco Urrutia
– 30 –
-
Batlle and Roig architects
- Elena Puigmal
- [email protected]
- 34 93 457 98 84

Francisco Urrutia
~
2.5 MB

Francisco Urrutia
~
3.4 MB

Francisco Urrutia
~
1.7 MB

Francisco Urrutia
~
2.2 MB

Francisco Urrutia
~
2.1 MB

Francisco Urrutia
~
1.7 MB

Francisco Urrutia
~
1.8 MB

Francisco Urrutia
~
3.9 MB

Francisco Urrutia
~
2.1 MB

Francisco Urrutia
~
4.6 MB

Francisco Urrutia
~
4.3 MB

~
770 KB

~
1.5 MB

~
36 MB

~
29 MB

~
37 MB

~
27 MB



