Team A receives AIA Chicago Distinguished Building Award for By The Hand Club For Kids
Team A
Chicago, United States, 2016-01-14 –
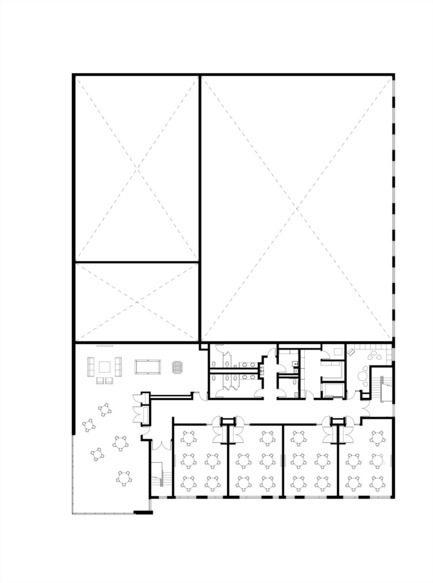
By The Hand Club For Kids is a new 26,300 SF after-school center in the Austin neighborhood of Chicago for kids grades 1-12. Designed by Team A, the facility hosts (8) spacious classrooms, a reading room, sun-filled multipurpose room, a gymnasium / cafeteria with a high school sized basketball court, an auditorium and administrative spaces. Fulfilling the needs in the Austin neighborhood for a safe and nurturing environment for at-risk youth, the site serves 264 students annually and is open seven days a week.
In the building design, Team A leveraged the use of prefabricated systems to expedite project delivery, maintain quality and provide a savings that would offset costs of other key sustainable elements and branding features. Bright colors and larger than life images of kids, from the club, were integrated into the exterior skin and lobby to provide a continuity of experience, engage the community and celebrate student achievement. Through many vantage points, including visibility from the CTA and Metra rail lines, the brand integration and green roof contrast starkly with its surroundings to offer an optimism for change and encapsulate the purpose of By The Hand Club For Kids.
Team AÂ Profile
Team AÂ is a Chicago based group of architects and thinkers committed to design excellence in the contemporary built environment. Â We stand for collaboration, both internally and among our broader team of clients & consultants, and we believe the best ideas must win. Â Therefore, our research, process and representation are non-linear / non-singular in nature and always tailored to a given set of goals and constraints.
– 30 –
- Team A
- Joe Buehler AIA, LEED AP BD+C
- [email protected]
- (312) 445-0252

Tom Harris © Hedrich Blessing
~
19 MB

Tom Harris © Hedrich Blessing
~
30 MB

Tom Harris © Hedrich Blessing
~
13 MB

Tom Harris © Hedrich Blessing
~
9.6 MB

Tom Harris © Hedrich Blessing
~
20 MB

TEAM A

TEAM A

TEAM A
~
2 MB



