Shanghai Museum of Glass
Logon
Shanghai, China, 2012-03-28 –
The new Shanghai Museum of Glass is located on a former glass manufacturing and processing site in the northern District of Baoshan, Shanghai (China). The site covers a total area of 40,300sq.m and consists of thirty industrial buildings varying in age, condition and scale, with most of them still being used by glass related industries. The owner, Shanghai Glass Co., aimed to upgrade the site, and selected two buildings to become the Shanghai Museum of Glass to kick start the project. It is the first glass museum in China, and one of the first museums in China based on a modern, interactive experience exhibition concept.
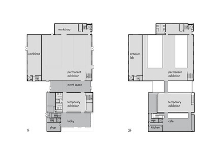
The museum covers an area of 5,500sq.m spread over two existing and two new building sections hosting the museum exhibition space, a glass art gallery, several workshops for both artists and visitors, event and temporary exhibition spaces, a café and offices, storage and supporting facilities. The Shanghai Museum of Glass building is the first and central building of an under-planning; glass, art, research and technology park that will be branded G+ Glass Theme Park (G+ Park). The idea
Due to the projects (current) industrial site location and lack of public transport conditions along with the time investment to travel to the site; the Shanghai Museum of Glass needed a compelling reason for people visit. This includes the museum’s un-mistakable façade and its’ multi-functional design all within the context of the G+ Park.
The Glass Museum acts as landmark and main image for the project. Its entrance building is equipped with an outstanding façade made of especially treated glass, and will be the icon and “loss leader” for the project. It is located at the main plaza, clearly visible for passersby and serves as entrance for the site, providing information about the project and leading visitors through the building or along the central axis.
Around the Glass Museum building, the new G+ Park will be developed. It will encompass a sculpture square for artists and creators, science and research facilities and a business park with commercial facilities. This G+ Park will be a new landmark in the culture, art and commercial landscape of Baoshan district and indeed China.
Old and newBuildings are more than just a temporary housing of a certain function. They are designed and build to last decades, and many of them, like the existing ones on the G+ Park site, are of a good construction quality and feature an open, flexible layout. But more than that, these buildings reflect the period of time when they were built, the social and economical situation of a city at time of construction, and of course the functions they were designed for. Hence, buildings are a part of or cultural heritage.
The museum is based on two existing buildings, a former glass bottle factory and a warehouse. As an urban regeneration adaptive reuse project, one of the museum’s main concepts was to preserve existing structures and rediscover the original character of the buildings. To make them suitable for museum usage the existing structures were cleaned-up, reinforced and upgraded with up-to-date building technologies for new windows and installations. Now, these parts of the project transcend the history and former usage of the site.
In addition to the existing structures, two new elements were added to the museum complex to enhance usability, exhibition requirements and visitor experience. A glass void is now connecting the two existing buildings on both exhibition floors, enabling a convenient visitor routing and providing an additional space for temporary exhibitions or events. Wrapping half around the former warehouse a two floor steel structure was added to provide spaces for; a representative and daylight lit entrance lobby, café and museum shop facing the main entrance plaza, restoration workshops, offices and restrooms along the side façade. Both old and new building parts are clearly visible on the façades and on the interior spaces of the museum, providing an additional theme to the exhibition connecting history and future.
The museum positioningThe Shanghai Museum of Glass is a museum with a modern concept to attract various visitors. As Glass Museums are not common in China, and the site location is currently difficult to reach by public transportation, the museum needed to offer more than exhibition space. A positioning report was worked out, and the goal set to develop a “type two” museum.
As a ‘type two’ museum, its’ multi-functional design distinguishes it from normal (type one) museums. To ensure visits return-on-time is satisfied, the museum had to deliver more than solely an exhibition-based museum would. In addition to its glass themed exhibition, the Shanghai Museum of Glass does this through its’ hot glass shows, DIY workshops, lectures, libraries, and other interactive activities all designed to attract and educate a variety of target groups creating value and incentive for people to visit. The hot glass show is the main element in the museum’s multi-functional design. It offers visitors the opportunity to act by themselves by creating an object of glass and understanding the material glass. This experience will be a long lasting memory for the visitors, especially for school classes and students, and distinguish this museum from the mass of standard museums.
The Shanghai Museum of Glass offers exhibitions and attractions to three main groups of users: school classes or university classes can experience the museum, the hot glass show and participate in seminars and lectures provided in the class rooms. Families can spend a day at the weekend here, exploring the site, the sculpture park or the commercial facilities including restaurants after a visit of the museum and the glass Show. Collectors, artists and professionals can use the Museum as platform to exchange knowledge and experience, and participate in seminars and special exhibitions in the temporary exhibition spaces or use the library of the museum. Through extensive project positioning and concise user-targeting, the Shanghai Museum of Glass gives its’ varying visitor groups the chance to educate and to be entertained through participation, action and experience – a place where visitors can clearly see value to spend several hours or even a full-day exploring.
The glass façade The major design feature of the museum is the unique glass façade. To provide an adequate and new idea for a façade for the Shanghai Museum of Glass, the design team had experimented with all kinds of available (and not available) glass materials – to end up with one of the most standard and commonly used glass materials: U shaped industry glass.
The key challenges were to invent a new type of glass façade for a glass museum owned by a glass production company and to create a landmark while integrating the new façade into an existing context. The design uses standard industry glass, U shaped glass panels, which are common in industrial buildings all over the world. The U shaped glass elements were imported from Germany, and further processed in Shanghai. To achieve the desired effect, these panels were treated in a unique way that turned them into an outstanding façade element.
The process took several steps, and was performed by the owner of the building itself, who had relevant experience on glass treatment, resulting in over 500 individual façade panels. Firstly, the elements were sandblasted from the back to reduce transparency. In a second step, glass-related keywords were selected in 10 different languages, and applied as plastic foil on the sandblasted surface. Enamel was sprayed on, and the words were revealed by taking off the foil where the enamel was fixed by heating up each element. Finally, selected keywords were equipped with LED backlight to create the stunning light effects during day and nighttime, turning the new Shanghai Museum of Glass into a true landmark for Shanghai and China – a truly unique interpretation of glass.
Originally, the designated museum building was located deep inside the area, hidden by some warehouse structures on a neighboring site. It was hard work to convince the owner of the Glass Museum to spend money by buying the neighbor buildings and to demolish them in order to create just an open space. In the end, the decision proved to be successful. As a facility open to public, the Shanghai Museum of Glass needed a representative and functional entrance situation enabling easy recognition whilst inviting visitors to enter the site. The layout creates an appropriately proportioned entrance plaza, which provides adequate visibility and space for gathering of visitor groups. Specific zones were created and outlined for bus drop offs, car parking and bicycle storage. The museum is one of the key projects for the local Baoshan government in it’s’ shift from Tertiary to Secondary industries. The new entrance plaza does not only enhance the museum; it also distinguishes the project from the neighboring industrial areas and increases the quality of the surrounding area.
Visitors experience the museum on a routing guiding them through new and old parts of the building, dark interior as well as daylight lit spaces that open to the surrounding industrial area. As the existing building parts reveal their original character in stone or concrete, the new areas are mainly executed as open spaces with glass as the main material. The museum experience tour starts in the main lobby, where the information desk and museum shop are located. Visitors then pass the temporary exhibition area, from where they are guided through the glass void, which enables views into the surrounding and the main exhibition area inside the former bottle factory. Here, the main exhibition shares the space with workshops, seminar rooms and library. The further route leads over a bridge on the second floor through the void into the upper floor of the temporary exhibition area, and ends at the café above the main atrium.
For the glass museum, two buildings were chosen to be reused and developed. The existing structure was covered by a layer of insulation, plastered and repainted in order to save energy in Shanghai’s harsh heating and cooling periods. To accommodate the newly needed technical functions, the new entrance building structure wraps around one, enabling the project to be equipped with all the necessary requirements acting as a ‘service belt’ for this modern museum. Only pipes go in and out of the old buildings providing AC, electricity, gas and water. All windows in old buildings were replaced; single glazing became state of the art double glazing. This upgrade also contributes the to museums interior air quality and along with new insulated roof the loss of energy is limited.
Through the reuse of the existing buildings and innovative & sustainable design to accommodate the structures new functions saves on both materials and energy resources of demolishing and rebuilding’s completely new structures. At the same time, by adapting the existing industrial glass manufacturing site characteristics into the design; visitors can appreciate and experience the museums past and future.
The glass facade manufacturing processPreparation
The U-shaped channel glass is imported from Germany since local supplier cannot provide the required material properties. As a first working step all remains must be removed from the material surface.
Coating
The black enamel coating gets applied on the inner side of the channel glass surface.
Hardening
The coating needs to be hardened for 120 minutes in an oven. This will permanently apply the coating to the channel glass. A temperature of 400 degrees is required.
Sand-blasting
By sand-blasting characters are removed from the enameled surface, so that transparency remains in these areas for later LED backlit. Project key facts
Architect: logon
Project name: Shanghai Museum of Glass
Location: 685 West Changjiang Road, Baoshan District, Shanghai, China
G+ Glass park site area: 40,300sq.m
GFA: 5,500sq.m (Phase one, Shanghai Museum of Glass)
Completion date: May 2011
Chief Designer: logon Creative Director, Mr. Frank Krueger
Awards :
• MIPIM Asia Awards 2011 – Urban Regeneration Award Winner
• China’s Most Successful Design Awards 2011 – Platinum Award
• Perspective Award 2011 Hong Kong – Certificate of Excellence
• 9th Modern Decoration International Media Award – Annual Public Space Award 2011
– 30 –
-
Logon
- PR Department
- [email protected]
- 86. 21. 6271 3207

diephotodesigner.de, Berlin/Germany
~
11 MB

diephotodesigner.de, Berlin/Germany
~
8.1 MB

diephotodesigner.de, Berlin/Germany
~
7.2 MB

diephotodesigner.de, Berlin/Germany
~
9.1 MB

diephotodesigner.de, Berlin/Germany
~
5.6 MB

diephotodesigner.de, Berlin/Germany
~
3.7 MB

diephotodesigner.de, Berlin/Germany
~
6 MB

diephotodesigner.de Berlin/Germany

diephotodesigner.de, Berlin/Germany

~
16 MB

~
2.5 MB

~
170 KB

~
1.7 MB

~
1.6 MB



