Circus Conservatory
Howeler + Yoon Architecture
Boston, United States, 2017-05-08 –
The Circus Conservatory building will house America’s first accredited degree program in Circus Arts. As the anchor tenant of a peninsula, the new site plan will transform an undeveloped section of Portland into a vibrant artistic center complete with public performance venues and recreational facilities.
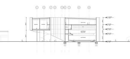
Historically, the circus floor was shaped by the radius of a walking horse on a tether, defining a circle with a radial audience, creating a culture of multi-directional performances, which persists today in contemporary circus and theater. The introduction of educational programs into the circus typology challenges the viewing relationships critical to circus and academic settings. With the hybrid proposal for the new Circus Conservatory of America, where acrobatics, performance, and classrooms are equal, the design utilizes this radial viewing strategy in order to similarly activate the educational community; to engage with the public, the city, the landscape and each other.
Several large acrobatic training halls, with transparent ends act as oculi through the circular plan. These provide dramatic views of the Fore River and connect cross-courtyard performances. Media areas, libraries, a cafe, and circulatory flex areas between the training halls are designed in a continuous interactive loop, which oscillates between training, group studying, socializing, and private practicing. Public circulation is woven through as patrons enter below the raised loop and into the large public auditorium. Together, the public and students are engaged via the formed underbelly which acts as a dynamic outdoor theatre and plaza.
The Circus Conservatory of America is a collaboration with OFIS Arhitekti.
Team HYA
Partners in charge: Eric Höweler, Meejin Yoon
Project Team: Kyle Coburn, Elle Gerdeman, Evan Farley, David Hamm
Team OFIS
Partners in charge: Spela Videcnik, Rok Oman
About Höweler + Yoon
Höweler + Yoon is an internationally recognized architecture and design studio, founded by principals Eric Höweler and Meejin Yoon. Originally known as MY Studio, our multidisciplinary practice operates in the space between architecture, art, and landscape. They believe in an embodied experience of architecture, seeing media as material and its effects as palpable elements of architectural speculation. While their work lies at the intersection of the conceptual and the corporeal, Höweler + Yoon are committed to both the practice-of and prospects-for architecture. Engaged in projects of all scales, they are interested in the material realities and material effects of their work. From concept to construct they are determined to realize the built idea and to test projects through the dynamic interaction between the construct and the larger public.
– 30 –
- Howeler + Yoon
- Chloe Conceicao
- [email protected]
- +1 617 517 4101

Courtesy of Höweler + Yoon Architecture

Courtesy of Höweler + Yoon Architecture

Courtesy of Höweler + Yoon Architecture

Courtesy of Höweler + Yoon Architecture

Courtesy of Höweler + Yoon Architecture

Courtesy of Höweler + Yoon Architecture

Courtesy of Höweler + Yoon Architecture

Courtesy of Höweler + Yoon Architecture

Courtesy of Höweler + Yoon Architecture

Courtesy of Höweler + Yoon Architecture



