39 social apartments
Ateliers O-S architectes
Paris, France, 2012-01-23 –
Located on a former industrial site, the project of 39 social apartments is part of a master plan of three housing projects organized around a generous garden. The project stands along Rue Pierre Vaux made up of two volumes of three and four floors. Its corner situation implies a specific work on this urban link.
The building adopts the inflection of the street, while the gabled facades usually blind are open to the neighborhood. A wide deck adjacent to the building overlooking the central garden, articulates and connects its level with the ground floor apartment level.
The project reflects a process of dialogue against the reluctance toward the social housing realized by a property developer. Because we gain the trust of our client, we were able to work in partnership to meet the needs of this project (density, cost surfaces, simple organization of the units), while working on the specific urban conditions and the quality of the outdoor private spaces.
ARCHITECTURAL CONCEPTThe building was designed and built based on two principles: density and generosity for the city and for the users. Housing are organized in a single volume surrounded by balconies, whose privacy is ensured by a set of colored wooden slats.
The work on the envelope provides a strong identity to the building, gives a kinetic character to the facades and offers sun and visual protection. As a vessel of a thousand sails reflecting the various colors of the sky, the project provides a range of colors from white to blue, which vibrates with the changing light of the day.
The project contrasts with the heterogeneous architecture of the neighborhood, and brings a hint of color and a sensitive daring. The floors slide with each other, creating the effect that the volume gradually opens out. As a boat deck, the balconies are real external rooms that are now inhabited in many different ways.
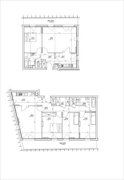
HOUSING LAYOUTThe apartments are organized around two vertical distributions, one for each part of the building. The A cage distributes 16 apartments by a staircase with natural light, the B cage distributes 23 apartments by a lift and a staircase. A basement level provides a 39 car park places.
Most of the apartments have several exposures, because of the different situations offered by the building. A void in the garden facade also provides light to several adjacent apartments. Each room has an outdoor extension. The balconies become real appropriated places allowing different uses, protected by the slats of the facade.
INTERIOR COMFORTThe plans of the apartments have been optimized to reduce the surface of the corridors. Generous openings light up all the rooms including kitchens.
The project is part of an environmental approach, respecting the THPE 2010 objectives and the CERQUAL profile A certification. To achieve these objectives the thermal insulation of the building is reinforced and all thermal bridges phenomena are reduced. The compact construction also minimizes heat loss. The solar orientation has been optimized to take advantage of free solar gain.
This project is a simple answer to the sustainable development concerns and to the particular urban context. It is an ambitious project for a social property developer who has transformed an ordinary commission to provide quality housing with generous living spaces.
Client: Logivie / Batigère
Planning schedule: Esquisse – Juillet 2008
Start of work – Novembre 2009
Delivery – July 2011
Budget: 3 466 000 € HT including VRD
Area: Shon: 3 221 m² / Shab: 2 571 m²
Partner consulting: Euclid (bet TCE)
Photo credit: Luc Boegly photographe
– 30 –
-
Ateliers O-S architectes
- Gaël Le Nouëne
- [email protected]
- 33 (0)1 48 06 89 62

Luc Boegly photographe
~
72 MB

Luc Boegly photographe
~
61 MB

Luc Boegly photographe
~
72 MB

Luc Boegly photographe
~
63 MB

Luc Boegly photographe
~
69 MB

Luc Boegly photographe
~
72 MB

Luc Boegly photographe
~
72 MB

Luc Boegly photographe
~
60 MB

Luc Boegly photographe
~
100 MB

Luc Boegly photographe
~
72 MB

Luc Boegly photographe
~
5.2 MB

Luc Boegly photographe
~
1.1 MB

Luc Boegly photographe
~
1.8 MB

Luc Boegly photographe
~
480 KB

Luc Boegly photographe
~
360 KB

Luc Boegly photographe
~
450 KB



